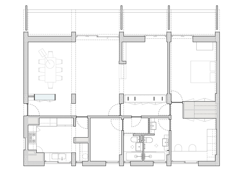
061 Apartamento MVM

Local

Olivais, Lisboa

cliente

Particular

coordenação projecto

Patrícia Matias

arquitectura

Patrícia Matias
Mariana Paiva

data

2024

Remodelação integral de um apartamento no edifício de habitação de autoria dos Arqs. Pires Martins e Palma de Melo nos Olivais Norte, obra notável da Arquitetura Moderna, construída em 1960.
Respeitar os aspetos construtivos e manter as características arquitetónicas traduzindo para uma intervenção contemporânea, foram os principais desafios desta obra.