010C Residência Assistida Moinhos da Funcheira

Local

Amadora

cliente

Concurso Público/Câmara Municipal da Amadora

coordenação projecto

Baixa Atelier: Patrícia Matias/Pedro Ravara

arquitectura

Patrícia Matias/Pedro Ravara/David Bernardino
Tecnopert, Projectos e Planeamento, lda
Betar,, Consultores, lda
FC Arquitectura Paisagista

data

2011

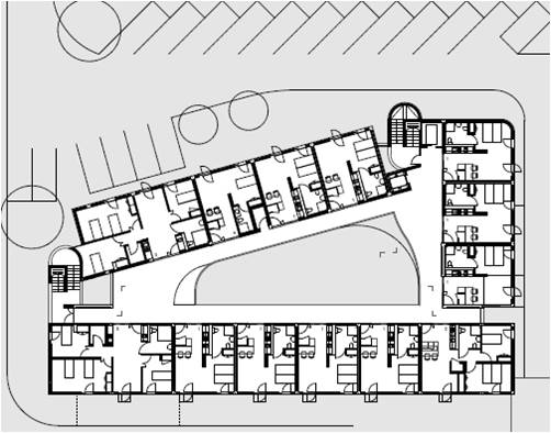
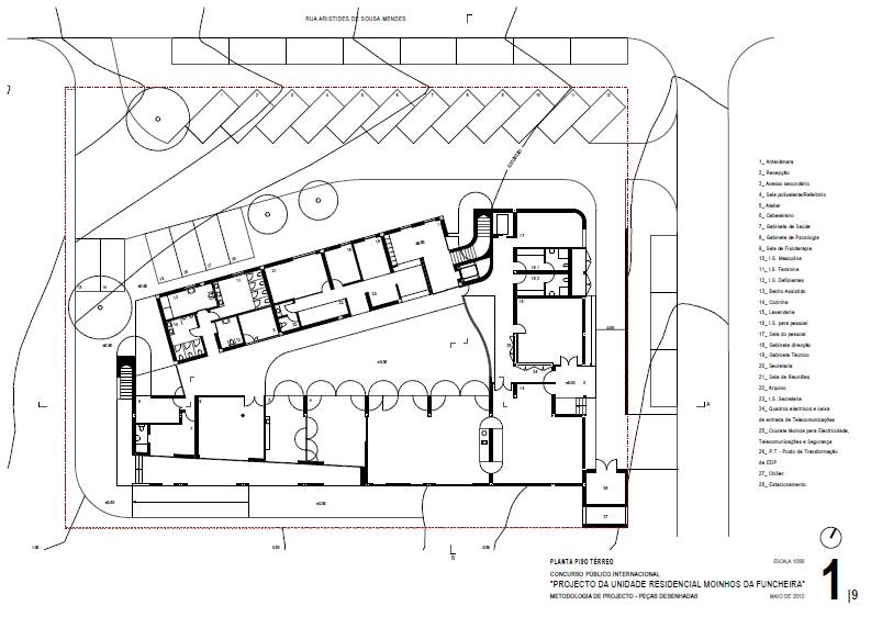
Localizada na zona norte da Amadora, a Unidade Residencial Moinhos da Funcheira insere-se num conjunto edificado de habitação e comércio. Para este concurso, o edifício proposto assume um protagonismo de objecto no jardim, pela sua dimensão e escala, considerando a continuidade e dimensão dos edifícios de habitação em presença sobre a Rua Aristides de Sousa Mendes. A proposta distribui por três corpos os apartamentos, sendo que partilham no espaço definido entre eles um hall ou pátio interior, com a altura total do edifício que recebe luz zenital filtrada da cobertura. O pátio central será um espaço de agregação dos espaços adjacentes e terá como função principal de zona de estar e extensão da sala polivalente. Será ainda um espaço para acontecimentos diversos como exposição de trabalhos feitos nas actividades do apoio social, uma biblioteca itinerante ou simples espaço de leitura, ou outros acontecimentos ocasionais. A organização responde aos movimentos diários diferenciados e à necessidade de controle dos acesso de utentes e visitas individuais e grupos, serviço, cargas e descargas, distinção de zonas exteriores de lazer e relação com áreas interiores.
Na fachada principal é proposta uma intervenção plástica com a inserção de um mural de azulejos da autoria dos designers Pedrita. Este painel decorativo invocando a imagem de um moinho e formado por centenas de azulejos cujo fabrico foi descontinuado e que reconhecemos das construções correntes dos últimos 50 anos, contribui para a paisagem urbana de forma original e inovadora.